ГЛАВНАЯ
О НАС
Портфолио
Услуги
ASQ INTERIORS
КОНТАКТЫ
ПОРТФОЛИО
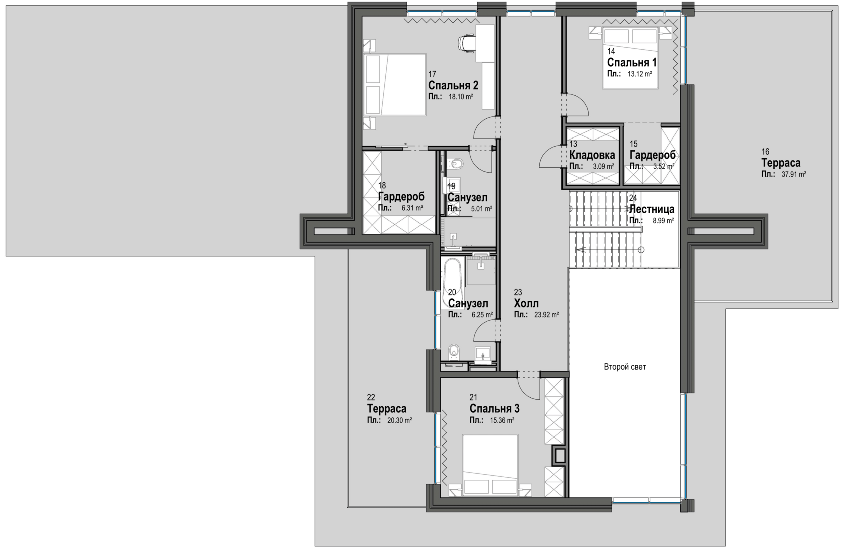
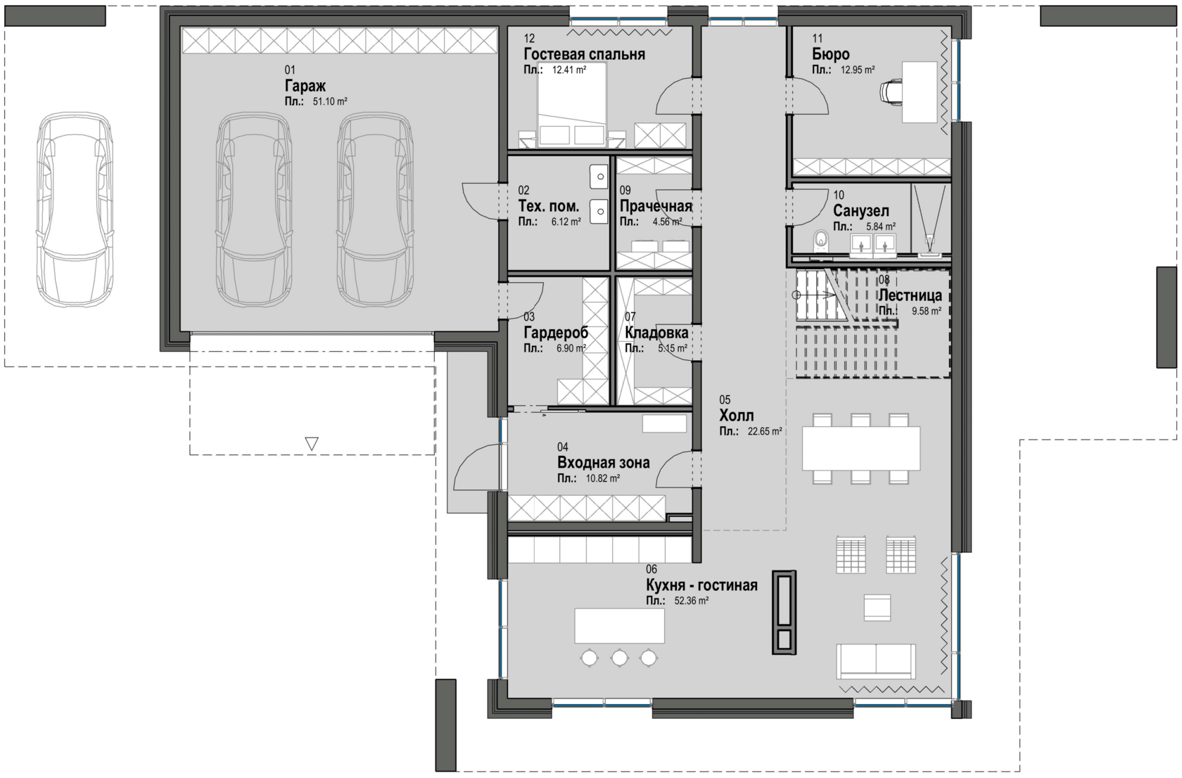
Общая площадь дома - 362.32 м2:
1 этаж - 200.44 м2
2 этаж - 161.88 м2
Екатерина Валерьевна Никулина
Политика конфиденциальности
Согласие на обработку персональных данных
© 2026